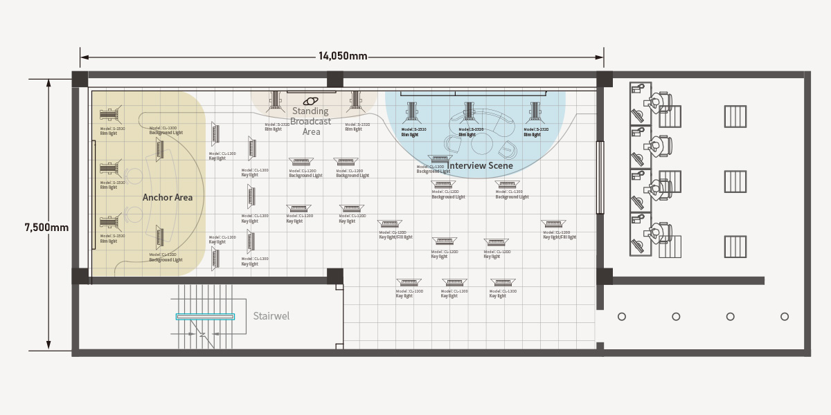
近期,南京奥视威灯光工程部为安徽芜湖南陵县融媒体中心演播室成功完成了一项灯光工程,项目总面积达105平方米,是一座设备齐全、景别多样的大型演播室。这个高度定制的演播室,具有3.7米层高,划分为主播区、站播区和访谈区三个景别,为媒体中心提供了多元化的拍摄和制作场景。
为确保演播室的光照效果达到最佳状态,奥视威灯光工程部采用了20台SWIT CL-120D演播室平板灯和8台SWIT S-2320演播室聚光灯。这些先进的灯光设备不仅提供了高度均匀的光线,还具备卓越的色彩还原度,为演播室创造了出色的视觉效果,使得每个景别都能呈现出最佳的影像质量。为了更好地满足用户的调光需求,奥视威灯光工程部还引入了SWIT 96路零基础上手调光台。这一智能化的调光解决方案不仅提高了灯光调控的精准度,还使操作更加便捷,为演播室的实际应用提供了更多的可能性。

以下是本案设计效果图、灯光点位图、现场施工图以及交付现场图,为您呈现出演播室灯光系统的完美融合,展现了我们在设计、施工和调试方面的专业水准。
灯 光 点 位 图

设 计 效 果 图





现 场 施 工 图


完 工 交 付 图











